
Beyond the Pixel: Bridging the gap between conceptual vision and onsite execution.
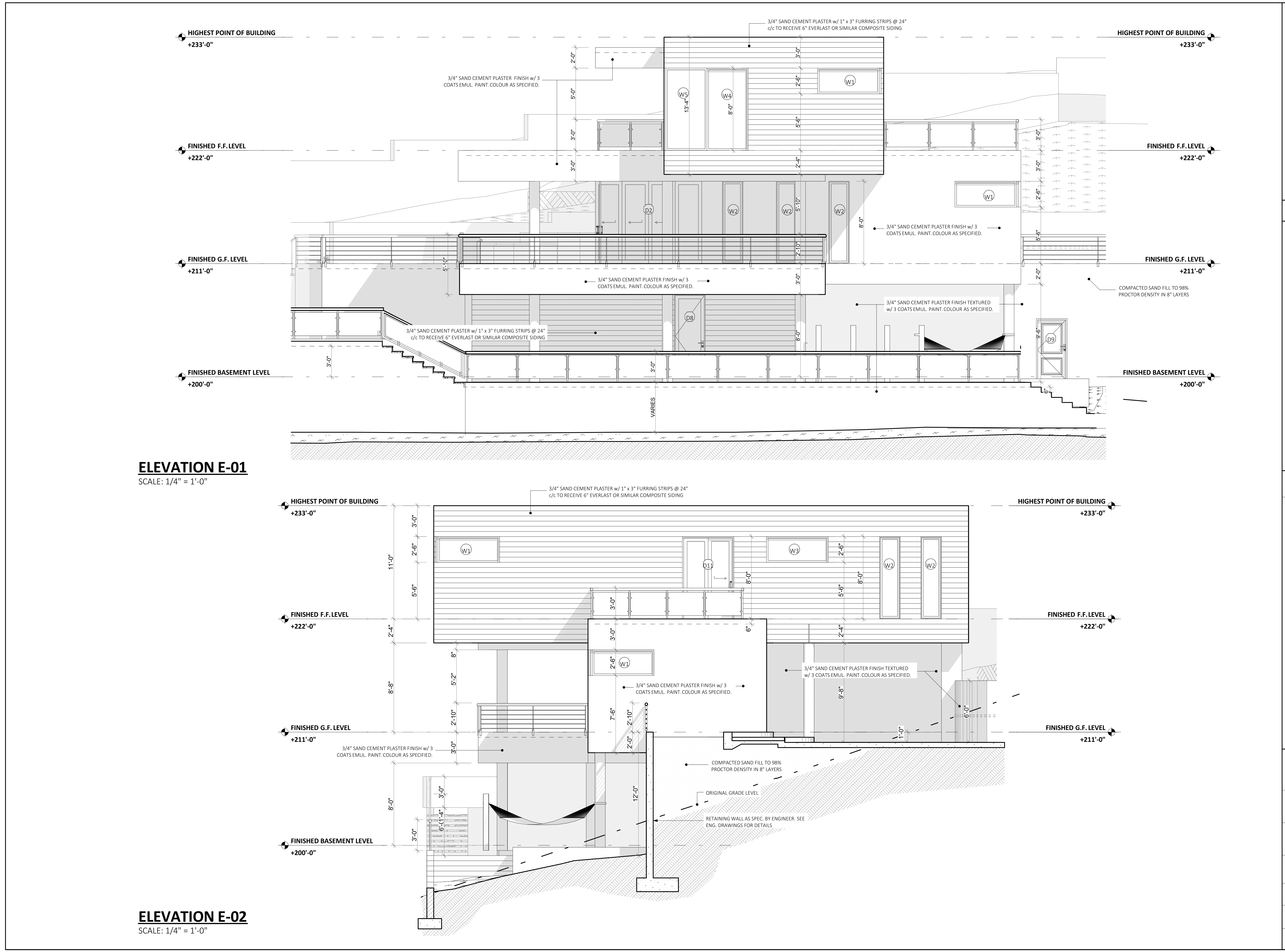
The "Bacchus Standard" of Documentation:
Structural Integration: We don't leave structural integrity to chance. Our detailing integrates complex reinforcement schedules directly into the architectural set, ensuring seamless coordination between the aesthetic form and the load-bearing skeleton.
Interior Specification: From fixture placement to tile layouts, our interior elevations are drafted to minimize "Requests for Information" (RFIs) on-site, reducing contractor error and preventing costly rework.
Civil & Environmental Systems: We design for the tropical context, which includes detailed planning for subsurface infrastructure. Our team handles the necessary but often overlooked detailing of soakaways and leach fields to ensure long-term site sustainability.
Why This Matters for Your Project: For our AEC partners, this level of detailing represents risk mitigation. We deliver drawing sets that are not just permit-ready, but construction-ready—clear, precise, and fully resolved.




